Search
Close this search box

services details

Compliance and Licensing

Compliance and Licensing

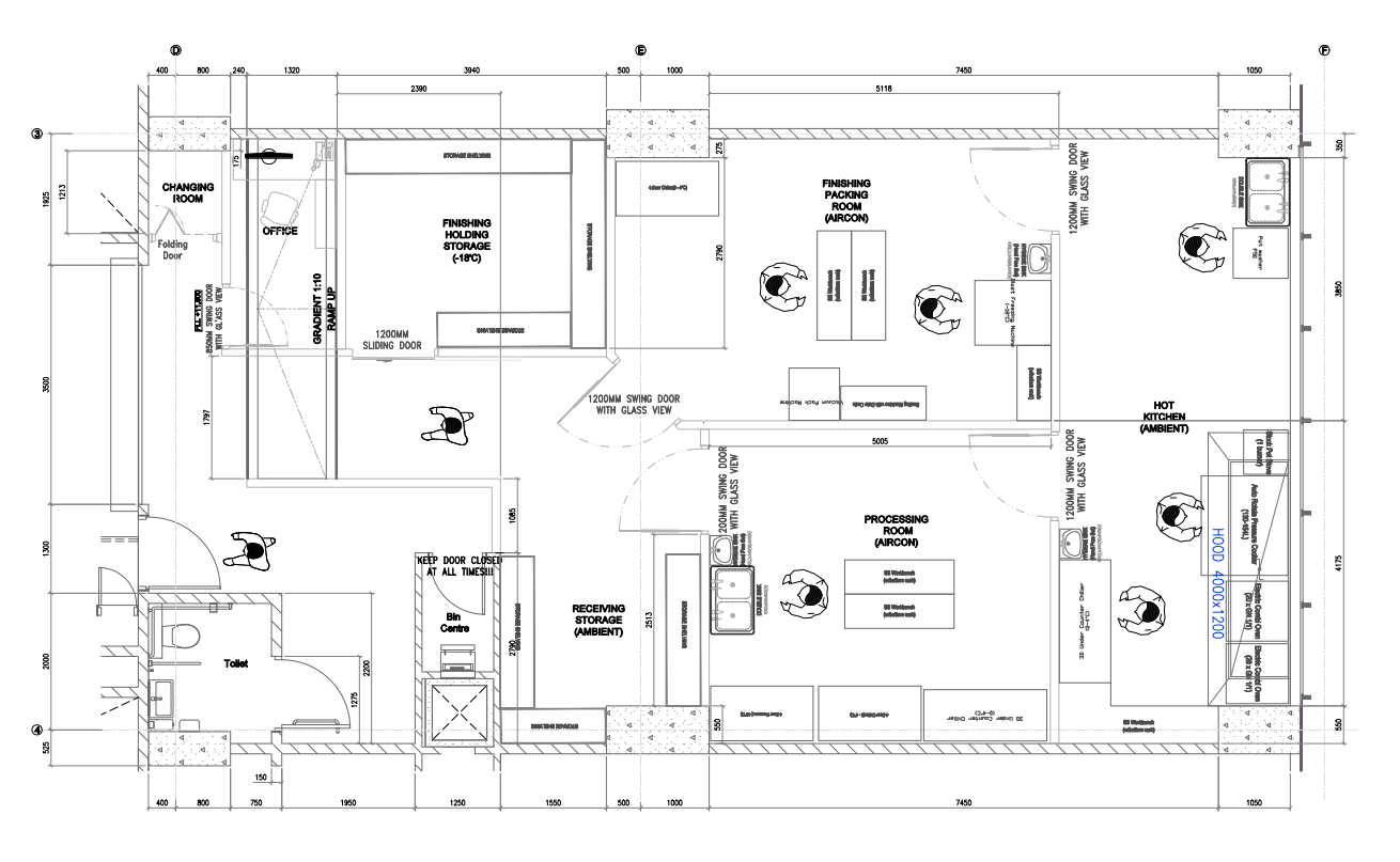
We support businesses in obtaining and maintaining their license to operate in Singapore by navigating regulatory requirements clearly and efficiently. From initial assessment to final approval, our consultants ensure your facility, layout, and operations meet all relevant compliance standards.

What’s Included?

For Who?

Why choose us?